Bielany/2 pokoje/piękny widok/zielono

Mieszkanie na sprzedaż
629 000,00 PLN , Pow. 42 m2
Drukuj ofertę
Drukuj ofertę
Typ nieruchomości:
Mieszkanie
Powierzchnia:
42 m2
Typ transakcji:
sprzedaż
Liczba pokoi:
2
Lokalizacja:
Warszawa Bielany , Władysława Broniewskiego
Rok budowy:
1973
Piętro:
8 na 10
Numer oferty:
235778
Cena za m2:
14 976,19 PLN
Lokalizacja: Warszawa, Bielany, ul. Broniewskiego 99

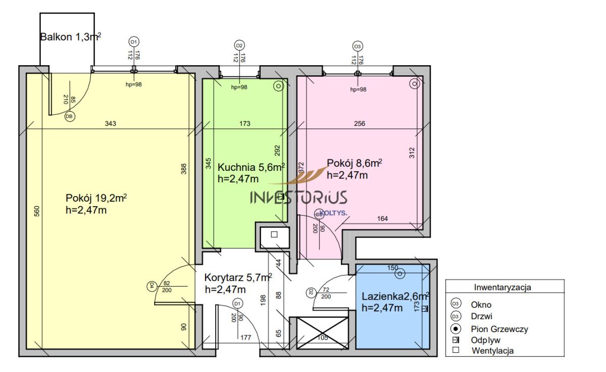
Powierzchnia: 42 m2

Piętro: 8 z 10

Liczba pokoi: 2

Dodatkowe pomieszczenia: Osobna kuchnia, balkon, łazienka, piwnica.

Rok budowy: 1973

CENA: 629 000 PLN

Opis:
Z radością prezentujemy Państwu atrakcyjną ofertę mieszkania na sprzedaż zlokalizowanego przy ulicy Broniewskiego 99 na Bielanach. Mieszkanie o powierzchni 42 m2 znajduje się na dziewiątym piętrze w dziesięciopiętrowym budynku z wielkiej płyty, wybudowanym w 1973 roku.

Nieruchomość składa się z dwóch pokoi, osobnej kuchni, łazienki oraz balkonu, co sprawia, że jest to idealne miejsce dla osób poszukujących funkcjonalnego rozkładu pomieszczeń. Ponadto istnieje możliwość połączenia kuchni z salonem, co z pewnością zwiększy atrakcyjność mieszkania.

Mieszkanie oferuje piękny widok z okna oraz korzystne warunki dla inwestorów, zapewniając wysoką stopę zwrotu. Dodatkowo, budynek został niedawno poddany remontowi, co obejmowało również klatki schodowe oraz elewację, co podnosi atrakcyjność i wartość nieruchomości.

W okolicy: Szkoła Podstawowa im. Henryka Sienkiewicza, przedszkole, siłownia, Lidl, Biedronka, szpital, przychodnia, apteka, plac zabaw. 

Należy również podkreślić, że mieszkanie jest objęte pełną własnością z księgą wieczystą, co umożliwia kredytowanie. To doskonała okazja dla tych, którzy poszukują inwestycji o stabilnym potencjale wzrostu.

Zapraszamy do kontaktu i umówienia się na prezentację mieszkania.
Tel. 887 766 767

WYŁĄCZNY OPIEKUN OFERTY

Piotr Gawroński
Specjalista ds. Nieruchomości
INVESTORiUS
Nieprawidłowy adres E-mail